Conway Residence

conway
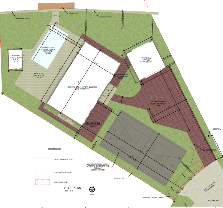
The proposed project involves converting the existing community facility at 2749 NE 14 Avenue into a single-family residence.

Preliminary plans for Conway Residence