TOPOS SB LLC

TOPOS SB LLC
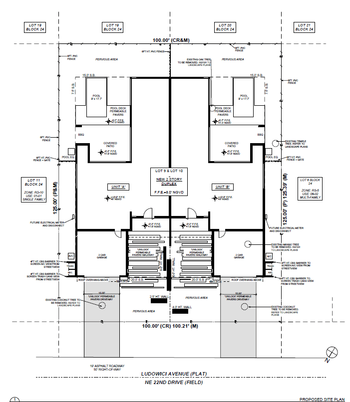
Site Plan
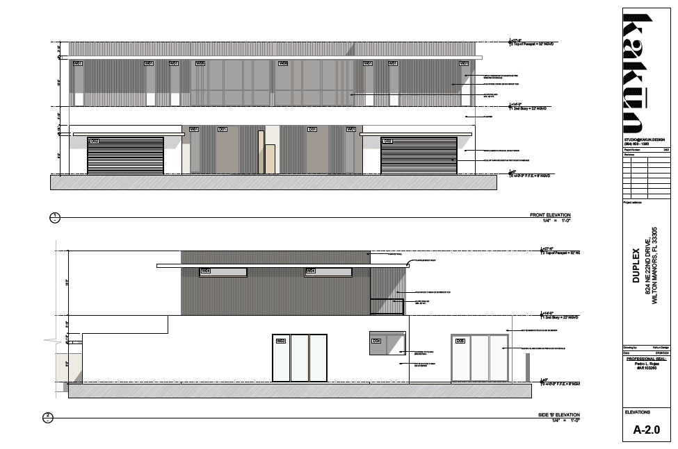
Elevation

The proposed project consists of a new duplex with two (2) units located at 824 NE 22 Drive. The subject parcel is located on the north side of NE 22 Drive between NE 9th Avenue and NE 7 Avenue. The project is known as “TOPOS SB LLC”. The existing single family home on the parcel with be demolished in conjunction the project.

View plans for TOPOS SB LLC.